农村的房子设计做了很多了,因为属于很简单的项目,也没特意去做什么研究。但大家都有建一间属于自己的房子的梦想,那也说一下吧。首先建房子前要明确,自己建房子的目的是什么,建房子主要是三种作用:1、自用,2、出租(就是那种农民出租的自建房,你懂的),3、自用+出租。
因为一幢房子住下去少说也会住20年,不存在住了一半更改房子用途的,因为房子修改或重新装修费用太大。所以建房子前,首先要确定自己的用途是什么,会不会长住,如果只是打算建好房子,退休后才回来住的,我劝你真会回来住才建,因为时代一直在发展,人的习惯和各种科技也在不断发展,近说10年前你根本不会想到有扫地机器人、也不会想到会有无人机,远说10年时间可能你已经结婚了,也有了小孩,甚至建房子的时候,小孩子才10岁,但10年后,小孩子长大了,成为一个小青年了,家庭成员的不同,各方面的使用习惯,也会不一样,房子的功能也不相同。
那么一间房子首先要确定或者说最重要的是什么呢?是楼梯,想不到吧,为什么这样说呢?第一,楼梯的位置会影响整间房子的其他功能的布局,第二,无论你以后想怎样修改房子的功能,楼梯的位置不会变,如果你连楼梯的位置都改变了,会影响房子的结构,而且费用比重建也差不了多少了。那么如何确定楼梯的位置呢?我们把房子分成九宫格,如下图示:

那么楼梯位置不同,会产生什么实际不同呢?我们用一个实际的例子来作对比,首先看
方案一

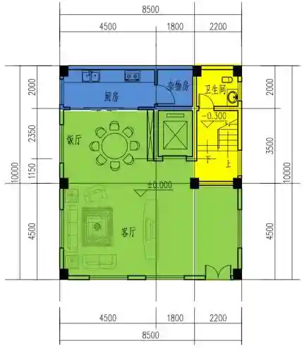
方案一:首层平面

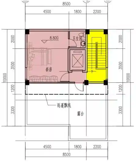
方案一:二层平面

方案一:三层平面
下面的是方案二

方案二:首层平面

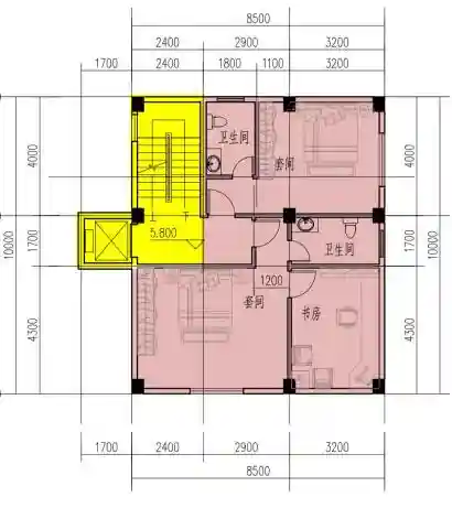
方案二:二层平面

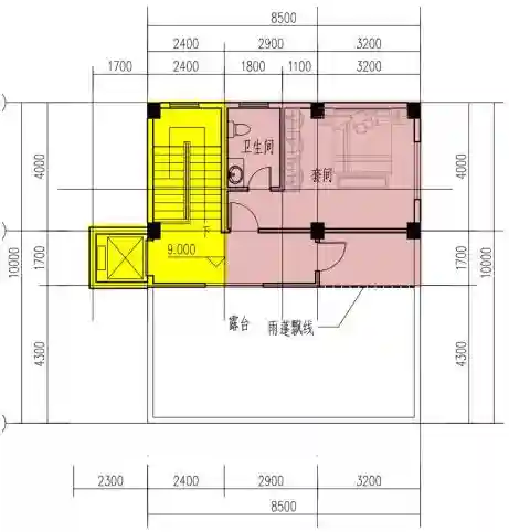
方案二:三层平面
这两个方案是同一业主的,他的需求是一样的,我把一至三层的平面布局展示出来,方案一是把楼梯布置在九宫格的3号位,方案二是把楼梯布置在九宫格的1号位,可以看出,楼梯布置在不同的位置,对房屋的平面布局是有很大的影响。
其实,现在虽然是在说农村房屋的布局,但别墅的布局其实也是一样的。关于更多住宅平面布局的问题,下次再继续聊。